Ornamental Iron Gates

We have built many ornamental iron gates leading into gardens and courtyards.  These wrought iron gates tend to contain more personal and decorative detail for the enjoyment of the owner.  We fabricate such gates out of many different metals, as well as iron, with hand forged elements, allowing a richness of detail.  Tell us your ideas, and we will express them in ornamental iron, aluminum, or bronze.  The latches, hinges, and handles are specified per clients desires and function of the gate.  Engaging details may include 17th century retracting lever latch, double swinging stainless hinges, a simple spring latch or a self closing, self latching swimming pool code compliant lock.


Related Projects

Tansey Gates

Tansey Gates

West Cornwall (Litchfield County)
Connecticut

Tansey Flower Gates. As seen above, a close up of the flowers.

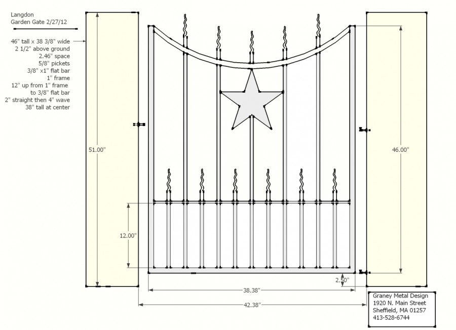
Star Gate

Star Gate

Hillsdale (Columbia County)
New York

Single garden gate. As seen above, the drawing presented to client for approval.

Medley Garden and Pool Gate

Medley Garden and Pool Gate

Egremont (Berkshire County)
Massachusetts

Garden and Pool Gate, Single and Double Door and the Driveway gate all with the same design.  Each gate was designed for the specific size space it was being installed in.  The medallion and wheel theme was carried on each gate just adjusted for each application size.  These gates are...

Ornamental Iron Walkway Gate

Ornamental Iron Walkway Gate

Hillsdale
New York

Garden Theme Gate with Wrens, Grape Vines, and Tools and the customers own Bell, as seen above.  This entire gate was hand forged steel using the traditional blacksmith techniques.  The steel is heated and worked into the exact size.  The leaves were laser cut out of steel then placed into...

Pool Gate

Pool Gate

Lenox (Berkshire County)
Massachusetts

Exterior pool gate is fabricated out of steel tube and flat stock for the scrolls.  The gate is painted with an automotive black paint.  This gate was custom fabricated to fit against existing pillars which is detailed in one of the pictures.

Iris and Sweet Pea Gate

Iris and Sweet Pea Gate

Upper Saddle River (Bergen County)
New Jersey

The client requested two matching wrought iron gates be made for their yard.  One gate is a single door and the other is a double door.  The details stayed uniform between the two, just the size and quantity of vines and flowers changed.  The flowers and vine were created using...

Cat Tail Gate

Cat Tail Gate

Salisbury (Litchfield County)
Connecticut

This gate is fabricated with 1/2" x 2" flat bar for the frame and the scrolls were 1/4" x 2" custom bent to fit the size of gate.  The Cat Tails are all hand done by using the traditional Blacksmithing techniques, then welded onto the frame.  The customer picked the...

Krupski Horse Shoe Gate

Krupski Horse Shoe Gate


Connecticut

Horse Shoe Theme Gate